168彩票开奖网,开奖网,彩票软件,彩票走势,彩票数据分析,彩票开奖结果查询,彩票开奖查询,彩票开奖号码,彩票走势图

电话:15837399557

NE板链斗式提升机

【产品类别】:斗式提升机

【 关 键 词】:NE板链斗式提升机,链板斗式提升机,板链斗提机

【产品简介】:NE型板链斗式提升机是一种常用的垂直提升设备,提升量大、性能稳定、故障率低。NE板链式斗式提升机由运行部件、驱动装置、上部装置、头部箱体、尾部箱体、中间箱体等部分组成。

NE板链斗式提升机

NE板链斗式提升机产品概述

NE型板链斗式提升机是一种常用的垂直提升设备,相对于TD皮带式、TH环链式,有着提升量大、性能稳定、故障率低等优点。NE板链斗提机是引进国外先进技术研制的新产品。采用自流式装料,重力式卸料,链条是优质合金钢高强度板式链条,链轮为齿轮式,齿面均经过淬火热处理,耐磨而可靠。

NE单双排链斗式提升机
NE15、NE30为单排链样式,NE50及以上型号为双排链样式,以上图片为上部装配的对比。
NE单双排链斗式提升机对比
以上是下部装配机尾内部的链轮对比,单排链板链斗式提升机上下个装配一个链轮,双排链提升机则装配两个链轮
NE板链斗式提升机单排链双排链
通过链条料斗也可以很容易分辨出单双排链斗式提升机的区别

NE板链斗式提升机主要结构

NE系列板链式斗式提升机由运行部件、驱动装置、上部装置、中部机壳、下部装置组成。

运行部件---由料斗和板链组成,NE30以及下采用单排链,NE50--NE800采用双排链。
驱动装置---采用多种驱动组合驱动,(依用户实际需要而定)。驱动制装置分左和右装两种。
上部装置---主要安装上部链轮、出料口、防回料挡板、观察口等,可根据需要加装检修平台、逆止器装置。
中间箱体---标准节为2米高,箱体采用折弯加强工艺。
下部装置---安装有改向链轮、自动张紧装置,张紧装置有丝杆弹簧式、重锤式。

NE板链斗式提升机技术参数表

型号 提升能力
(m³/h)
斗速(m/s) 主轴转数(n/min) 料 斗 链条节距 
(mm)
运行部件重量(Kg/m) 物料最大块度(mm)
容积 
(L)
斗宽 
(mm)
斗距 
(mm)
允许所占百分比%
10 25 50 75 100
NE15 15 约0.5 16.54 2.5 250 203.2 101.6 27.5 65 50 40 30 25
NE30 30 约0.5 16.54 7.8 300 304.8 152.4 35 90 75 58 47 40
NE50 60 约0.5 16.54 15.7 300 304.8 152.4 64 90 75 58 47 40
NE100 110 约0.5 14.13 35 400 400 200 89 130 105 80 65 55
NE150 170 约0.5 14.13 52.2 600 400 200 112.5 130 105 80 65 55
NE200 210 约0.5 10.9 84.6 600 500 250 134 170 135 100 85 70
NE300 320 约0.5 10.9 127.5 700 500 250 188 170 135 100 85 70
NE400 380 约0.5 8.3 182.5 700 600 300 205 205 165 125 105 90
NE500 470 约0.5 7.1 260.9 700 700 350 223 240 190 145 120 100
NE600 600 约0.5 7.1 330.2 800 700 350 350 240 190 145 120 100
NE800 800 约0.5 6.2 501.8 800 800 400 313 270 220 165 135 110

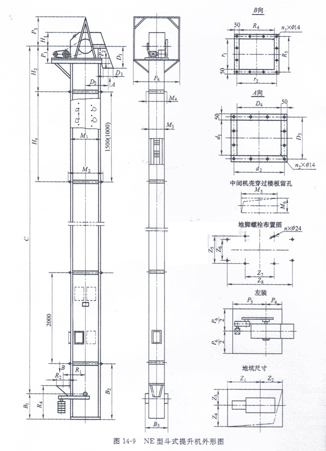
NE板链斗式提升机外形尺寸

斗式提升机外形尺寸

上一篇:没有了!

下一篇:TH环链斗式提升机

【168彩票开奖网】彩票开奖结果查询_彩票开奖查询_彩票走势图 - www.1688208.com 15837399557 返回顶部
168彩票开奖网